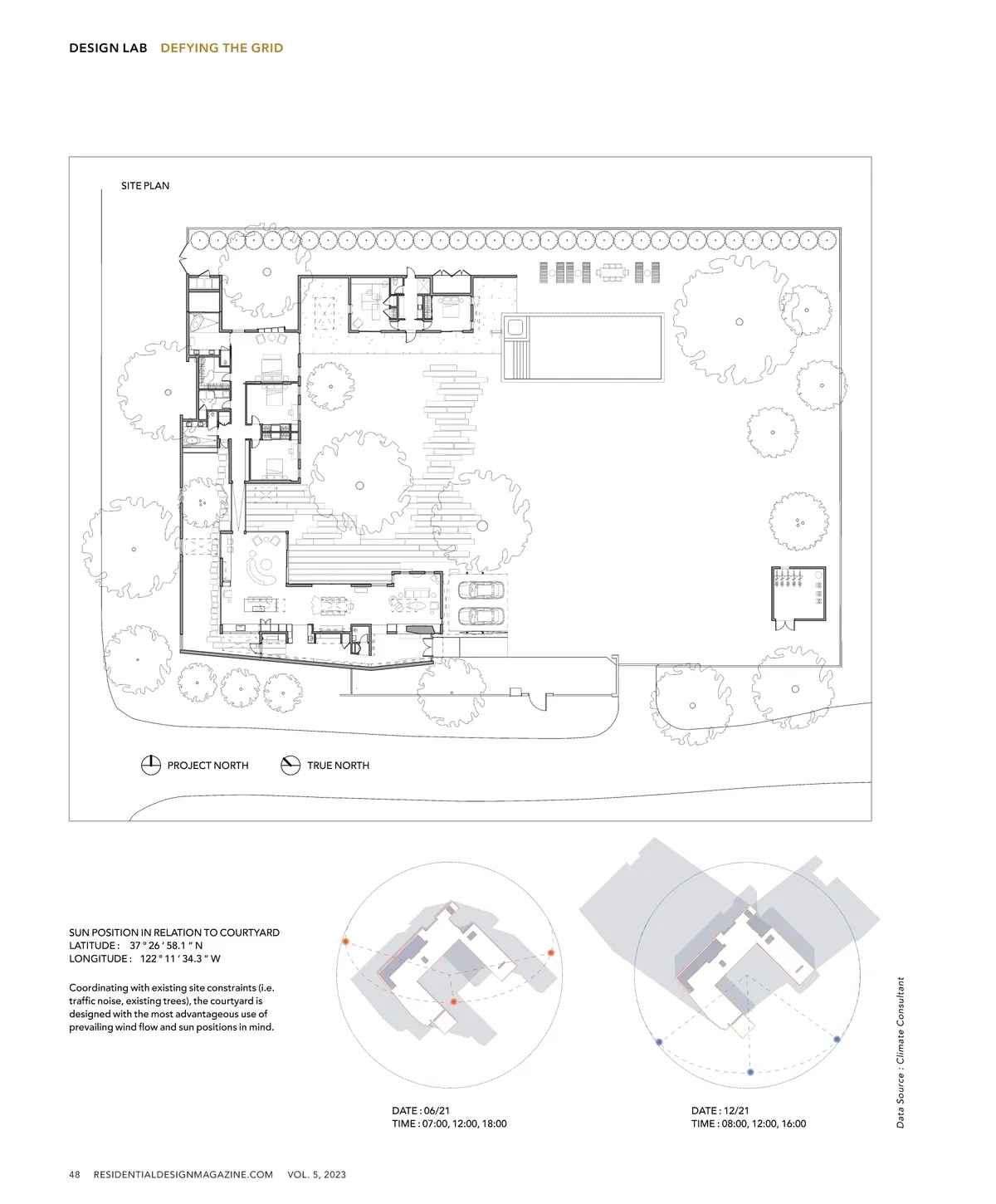
a heightened sense of light and views compensates for the cloistered setting. “I love the living room because there are about seven ways to see outside,” Neal says. “You’re seeing through multiple spaces, including the glassy connector ramp to the private zone and the outer courtyard.” Across that ramp are two kids’ bedrooms, a shared bath, and the primary suite, which opens to yet another private courtyard designed around an existing tree. The third leg of the U shape contains a guest suite that doubles as a pool house. Embracing Color Inside and out, the material palette melds the couple’s cultural sensibilities: he is Indian and she has Scandinavian roots. The exterior cladding is quiet, a combination of Shou Sugi Ban cedar and lighter cedar accents, while the Cor-Ten steel carport enclosure recalls Indian jali screens. Inside, whitewashed oak cabinets and white oak floors lend a Scandinavian vibe. Neal admits that initially, the clients’ quest for color pushed the team beyond their comfort zone: the kitchen island is cobalt blue, the guest bath has orange wall tile, and the pool changing room is covered in blue wallpaper with a tree mural. “They definitely pushed the use of color, more than we might naturally do,” he says, adding that it all works. “The primary bath floor is a red concrete tile balanced with gray crackle wall tile. In that space the floor is vibrant, and the tile is very organic. You turn and look into this super-serene courtyard with soft plasterwork.” In the backyard, staggered pavers meander between the public spaces and the guest/pool house, echoing the fluid-ity of the floor plan. “Inside, your eye is always moving and encouraging you to meander,” Neal says. “The landscape does that too.” Despite its solid presence on the street, the Modal Home softens the divide between inside and out. Its airy courtyards, leafy views, and gentle light offer up a meditative response to the demands of urban dwelling. — Cheryl Weber RESIDENTIALDESIGNMAGAZINE.COM 49 VOL. 5, 2023